塑胶模具-打印机按键双色模注塑设计
一.产品介绍
TPE 材料止滑性好,且弹性触感佳,可提升制品的触摸手感,增强握持性, 提升制品美观度以及产品附加值。同时因 TPE 弹性体软胶为绿色环保原料,材料不含邻苯二甲酸盐,不含卤素, 增加不同的色粉可以制成美观的产品而不需要喷涂, 不影响环境, 因而得到广泛的应用。本文介绍的是日本某品牌打印机按键双色模具, 其中硬胶为 HI-PS,软胶为 TPE.这两种材料的粘结力好, 产品性能稳定, 适合大批量生产。
1 打印机按键产品图
二. 产品分析
打印机按键产品图见图 1, 尺寸较小。 产品设计中硬胶需避免尖锐的转角,以保证 TPE 与硬胶接触良好,提升粘接效果。 合理确定 TPE 软胶的厚度, 如果 TPE 太薄, 则流动性差, 手感不佳, 太厚则容易缩水, 同时浪费TPE 材料。
3. 模具设计要点:
1. 型腔数的确定: 由于制品较小, 型腔排位为 1 出 4, 本套双色模具结构采用亚洲双色模结构, 即两套完全相同模胚的双色模具, 模胚型号为 FCI2020, 从富得巴订购。 模具具有两个完全相同的后模,而两个前模型腔是不同的,用于注射不同的物料。 注意模胚的导柱导套孔仍然需要基准角偏置,以防加工时出错,和普通单色模具一样。 另外一点需要注意的是模具必须设计成三板模的形式,在一次注塑后, 二次注塑前, 水口料需要及时分离, 特别需要注意的是软胶的水口料容易粘模, 须在模具设计和制作时注意。
用来制作双色模的两套模架,分中尺寸一定要求完全一致,导柱孔的位置也必须一致,要求两套模架的前、后模能够自由互换,同时两套模架的总高也要相同,还要两套前模和两套后模分别等高(这一点在购定模架时就需要作特别说明)。
硬胶 HI-PS
软胶 TPE
软胶进胶点
硬胶进胶点
2. 浇口设计: 双色模具的浇口位置设计非常关键, 需要慎重考虑。 本套模具浇口为点浇口, 每穴两点进胶, 模具为三板模, 浇口位置见产品图所示。 其中硬胶的浇口位置在注射 TPE 时, 被 TPE 所覆盖, 不会影响到外观。 TPE 的浇口位置在产品组装后同样处于不可见的位置。
3. 收缩率确定: 双色模具的收缩率确定非常关键, 一般首次注射硬胶, 硬胶 HI-PS 缩水取 0.5%, 在单色模具中,软胶 TPE 的缩水率为 1~2%, 软胶收缩率明显大于硬胶, 给模具设计( 3D 分模时会造成坐标系不重合) 带来困难。 双色模具中, 由于硬胶的限制作用, 软胶的收缩率较小, 在按键类小产品中, 软胶不放收缩率。
4. 塑件顶出:塑件采用司筒顶出, 流道凝料采用顶针顶出。
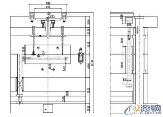
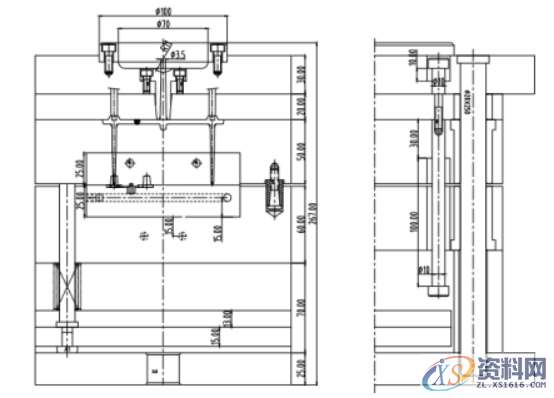
5. 前后模具的运水见模具设计图 2。 双色模具的运水接头必须设计在转盘中心。( 注意模具图标有天侧)
2 打印机按键模具图( 续)( 软胶)
3 打印机按键模具实物照片
五.总结
通过模具出口后客户使用的实践表明,模具结构设计合理,为同类模具设计提供了可借鉴的经验。
我们是知识搬运工,我们是技术传播者!
东莞潇洒职业培训学校开设课程有:CNC数控编程、塑胶模具设计,压铸模具设计、冲压模具设计, Solidworks/pro/E产品设计、AutoformR7工艺分析,非标自动化设计、PLC编程、文职、电商、平面设计、新媒体等培训课程,潇洒职业培训学校线下、线上、随到随学等学习方式,上班学习两不误,欢迎预约免费试学!
联系电话:18029180991(微信同号)QQ:3461766451
学校官网:www.dgxspx.com线上免费试学: xsmj.ke.qq.com
即日起,组团3人以上学习CNC电脑锣实操课程,学费全免,学会为止包就业,工资4000-6000以上
1、本文由入驻智造人才网资讯专栏的作者撰写或者网上转载,观点仅代表作者本人,不代表智造人才网立场。如有侵权或者其他问题,请联系举报。
2、本网转载并注明自其它来源的作品,目的在于传递更多信息,并不代表本网赞同其观点或证实其内容的真实性,不承担此类作品侵权行为的直接责任及连带责任。其他媒体、网站或个人从本网转载时,必须保留本网注明的作品来源,并自负版权等法律责任。
3、如涉及作品内容、版权等问题,请在作品发布之日起一周内与本网联系,否则视为放弃相关权利。


Copyright C 2020 All Rights Reserved 版权所有 智造人才网 粤ICP备16112896号 44190002004849号
地址:东莞市横沥镇兴业路121号 EMAIL:qiufukang2007@163.com
Powered by 广东智造