9.10 动力箱
一、实例分析
动力箱由两个草图拉伸求交得到,主要注意两个草图的位置关系。
二、学习目标
在学习本实例时,注意以下要点:
掌握草图的绘制,约束;
掌握拉伸特征的基本设计方法和技巧;
掌握抽壳的技巧。
三、设计过程
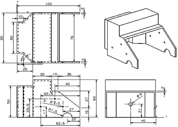
动力箱结构图如图9-113所示,绘制步骤如下:

图9-113 动力箱结构图
1.选择“文件”|“新建”命令,新建名称为donglixiang.prt的部件文档,再选择“起始”|“建模”命令打开建模功能;
2.建立图层:
1~20层:实体 (SOLIDS);
21~40层:草图 (SKETCHES);
41~60层:曲线 (CURVES);
61~80层:基准 (DATUMS);
3.单击“草图”按钮,选择XC-YC作为草图平面进入草图环境,绘制如图9-114所示草图曲线,命名为“ct1”,并作图示约束,单击“完成草图”;

图9-114 草图曲线ct1
4.单击“草图”按钮,选择XC-ZC作为草图平面进入草图环境,绘制如图9-115所示草图曲线,命名为“ct2”,并作图示约束,单击“完成草图”;

图9-115 草图曲线ct2
5. 单击“拉伸”按钮
,选择“ct1”拉伸“起始”为“0”,“结束”为“60”,如图9-116所示,单击“应用”,选择“ct2”拉伸,“起始”为“-40”,“结束”为“40”,选择“布尔求交”运算,得到结果如图9-117所示;

图9-116 拉伸草图ct1 图9-117拉伸草图ct2并求交
6.单击“特征操作”工具条上的“空壳”按钮
,选择图9-118(a)所示3个面,设定“厚度”为“2”,单击“确定”按钮,效果如图9-118(b)所示;
7.单击“成型特征”工具条上的“孔”按钮
,在弹出的“孔”参数对话框内输入“直径”为“7.5*2”,“深度”为“120”在侧面创建孔,定位尺寸为“20”“0”,重复“孔”操作,效果如图9-119(a)所示,在弹出的“孔”参数对话框内输入“直径”为“2.5”,“深度”为“120”在侧面创建3个孔,定位尺寸分别为“62.5”和“17”,“27”和“17”,“29.5”和“40”,在前端面创建“孔”“直径”为“6”,定位尺寸为“21”和“40”效果如图9-119(b)所示;

(a) (b)
图9-118 抽壳操作

(a) (b)
图9-119 创建孔
8.将草图曲线ct1、ct2分别移至图层21层22层,保存,如图9-120所示。
见光盘part/9/donglixiang.pat

图9-120 动力箱
该文章所属专题:UG卡丁车设计实例教程
1;所有标注为智造资料网zl.fbzzw.cn的内容均为本站所有,版权均属本站所有,若您需要引用、转载,必须注明来源及原文链接即可,如涉及大面积转载,请来信告知,获取《授权协议》。
2;本网站图片,文字之类版权申明,因为网站可以由注册用户自行上传图片或文字,本网站无法鉴别所上传图片或文字的知识版权,如果侵犯,请及时通知我们,本网站将在第一时间及时删除,相关侵权责任均由相应上传用户自行承担。
[complaint:内容投诉]
智造资料网打造智能制造3D图纸下载,在线视频,软件下载,在线问答综合平台 » UG卡丁车设计实例教程(十)_动力箱(图文教程)

