煤气的主要成分是CO、氢和烷烃、烯烃、芳烃等。不同城市的煤气,CO、氢的含量可能相差比较大。煤气有毒是因为其中的CO、芳烃等能与人体中的血红蛋白结合,造成缺氧,使人昏迷不醒甚至死亡,在低浓度下也能使人头晕、恶心及虚脱。因为CO气体有毒,所以通常所说的煤气报警器就是通过检测泄漏的CO气体浓度来作为报警判断的,如果是含氢大的煤气,可以采用检测泄漏氢气的浓度报警。
人们面对燃气泄漏而造成的种种事故威胁,使用燃气泄漏报警器是对付燃气无形杀手的重要手段之一。煤气报警器一般是通过检测泄漏的一氧化碳气体浓度来作为报警判断的。采有用燃气泄漏报警器就能得到及时的警示。有关部门经长期测试得出结论,煤气报警器防止一氧化碳中毒事故发生的有效率达95%以上。

图 1 煤气报警器外壳产品图
二.产品分析
日本某品牌煤气报警器外壳产品图见图1,塑件尺寸为129mm*98mm*40mm,塑件最大壁厚为2mm,重量为59克,材料为AES(UL94-H8),密度1.04,AES树脂(丙烯腈-EPDM橡胶-苯乙烯共聚物)具有极佳的耐候性,即使长时间暴露在室外紫外线、潮湿、雨淋、光照及臭氧条件下,不经涂装也能保持物性稳定。特别适合不涂装在户外直接使用。煤气报警器一般安装在楼道或走廊之外,也有一些安装在楼外,使用AES正是利用了其优异的耐候性,此种材料也可以用来生产轿车的后视镜外壳等。

图2煤气报警器外壳产品图
通常使用的ABS树脂具有优异的成型性、耐冲击性及光泽度等特性,但由于在合成ABS时所使用的丁二烯橡胶中的双键结构,所以容易被紫外线、热能等降解氧化,在室外环境下长期使用时,会出现物性降低及褪色等情况。虽然可以采用添加剂来解决这个问题,但是效果并不理想,所以最根本的办法是使用不含双键结构的稳定性橡胶。AES、ASA、ACS等树脂正是弥补了ABS在室外环境下使用的不足。
AES不仅仅是一种耐候性极佳的树脂,由于EPDM橡胶相Tg低,使AES具有比ASA更加优异的耐低温冲击性,因而越来越多地被使用于汽车零部件及其它需要寿命长、安全可靠的塑料制品。不需涂装的优点使AES在价格上更有竞争力。
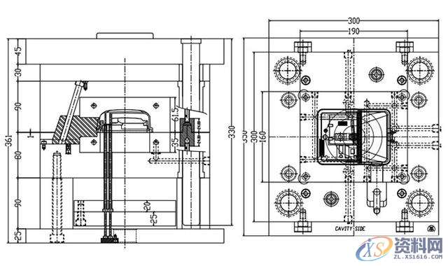
仔细分析塑件图纸可以看出,塑件的整体形状为规则的矩形,毫无疑问其分型面为一个简单平面。由于塑件在顶部大面积存在骨位和沟槽,对此塑件还需要做开模方向的分析,即就是塑件的哪一面放在前模,哪一侧放在后模的问题,塑件的顶部边缘有一处扣位,存在矩形盲孔,需要做前模抽芯。塑件边缘有一处通孔和其底部的7个小孔,需要做滑块抽芯,如果做前模滑块,则外观美观无滑块夹线,但是塑件在此处边缘强度不足,只能设计后模滑块。经过分析,分型面的选取如模具图2所示。
3.模具设计要点:
1. 型腔数的确定:根据塑件尺寸结合塑件的结构形状,模具设计选择了1出1的设计,见图4—6。
2. 分型面:分型面为一个平面,有盲孔抽芯的一侧放在前模,检查脱模斜度,不得存在粘前模的现象。

图4煤气报警器外壳模具图
3. 前模抽芯机构设计:矩形盲孔设计前模抽芯机构,小弹簧限位。
4. 后模抽芯设计:设计斜导柱抽芯机构,见模具设计图。

图5煤气报警器外壳模具图
5. 三板模开模由尼龙开闭器驱动,注意尼龙开闭器的顶部不得钻排气孔。
6. 前后模仁的检测数据图见图7,设置PL面坐标为零,利用坐标表示镶件的高低位置,方便数据检测,对照前后模仁数据,便于模具分析。这种设计表达方式在模具FIT模和组装时有显著优势。 点击关注关注老师学习不迷路,进老师主页查看更多干货!

图6煤气报警器外壳模具图
四.注塑工艺
加工温度:200~260℃,耐热AES温度提高10℃,不宜在高温炮筒内停留时间过长(应小于30分钟);
模具温度:40…80℃;
注射压力:500~800bar;
注射速度:中高速度;
螺杆背压:10-40bar。

图7前后模仁的检测数据图
五.总结
通过投产后的实践表明,模具结构设计合理,为同类模具设计提供了可借鉴的经验。塑件材料的选择完全能够满足苛刻的室外使用条件。
东莞潇洒职业培训学校目前开设课程有:学历提升、积分入户、数控编程培训、塑胶模具设计培训,压铸模具设计培训、冲压模具设计培训,精雕、ZBrush圆雕培训、Solidworks产品设计培训、pro/E产品设计培训、AutoformR7工艺分析培训,非标自动化设计、PLC编程、CNC电脑锣操机、平面设计等培训,潇洒职业培训学校线下、线上等网络学习方式,随到随学,上班学习两不误,欢迎免费试学!
联系电话:13018636633(微信同号) QQ:1740467385
学习地址:东莞市横沥镇
1;所有标注为智造资料网zl.fbzzw.cn的内容均为本站所有,版权均属本站所有,若您需要引用、转载,必须注明来源及原文链接即可,如涉及大面积转载,请来信告知,获取《授权协议》。
2;本网站图片,文字之类版权申明,因为网站可以由注册用户自行上传图片或文字,本网站无法鉴别所上传图片或文字的知识版权,如果侵犯,请及时通知我们,本网站将在第一时间及时删除,相关侵权责任均由相应上传用户自行承担。
[complaint:内容投诉]
智造资料网打造智能制造3D图纸下载,在线视频,软件下载,在线问答综合平台 » 塑胶模具设计:家用煤气报警器外壳设计分享!

