注塑模具出故障,如何排除?

注塑模具出故障,如何排除?

注塑模具出故障,如何排除?,第1张

注塑模具的结构形式和加工质量直接影响塑件制品质量和生产效率。模具生产过程中各种故障非常多,下面是几种常见的故障的解决方案。

浇口脱料困难:

注塑模具出故障,如何排除?,第2张


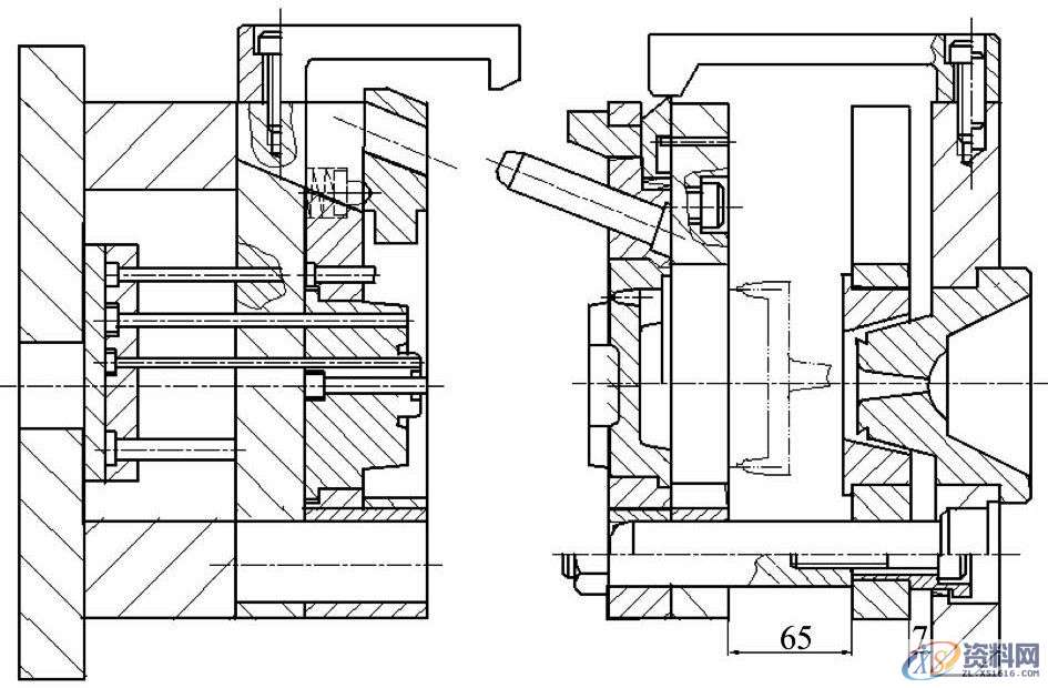
在注塑过程中,浇口粘在浇口套内,不易脱出。开模时,制品出现裂纹损伤。此外,操作者必须用铜棒尖端从喷嘴处敲出,使之松动后方可脱模,严重影响生产效率。这种故障主要原因是浇口锥孔光洁度差,内孔圆周方向有刀痕。

还有是材料太软,使用一段时间后锥孔小端变形或损伤,以及喷嘴球面弧度太小,致使浇口料在此处产生铆头。浇口套的锥孔较难加工,应尽量采用标准件,如需自行加工,也应自制或购买专用铰刀。锥孔需经过研磨至Ra0.4以下。此外,必须设置浇口拉料杆或者浇口顶出机构。

导柱损伤:

注塑模具出故障,如何排除?,第3张


导柱在注塑模具中主要起导向作用,以保证型芯和型腔的成型面在任何情况下互不相碰,不能以导柱作为受力件或定位件用。在以下几种情况下,注射时动、定模将产生巨大的侧向偏移力:(1)塑件壁厚要求不均匀时,料流通过厚壁处速率大,在此处产生较大的压力;(2)塑件侧面不对称,如阶梯形分型面的模具,相对的两侧面所受的反压力不相等。

动、定模偏移:

注塑模具出故障,如何排除?,第4张

大型模具,因各向充料速率不同,以及在装模时受模具自重的影响,产生动、定模偏移。在这几种情况下,注射时侧向偏移力将加在导柱上,开模时导柱表面拉毛,损伤,严重时导柱弯曲或切断,甚至无法开模。为了解决以上问题,在模具分型面上增设高强度的定位键四面各一个,最简便有效的是采用圆柱键。导柱孔与分模面的垂直度至关重要。在加工时是采用动,定模对准位置夹紧后,在镗床上一次镗完,这样可保证动,定模孔的同心度,并使垂直度误差最小。此外,导柱及导套的热处理硬度务必达到设计要求。

动模板弯曲:

注塑模具在注射时,模腔内熔融塑料产生巨大的反压力,一般在600~1000公斤/厘米2。模具制造者有时不重视此问题,往往改变原设计尺寸,或者把动模板用低强度钢板代替,在用顶杆顶料的模具中,由于两侧座跨距大,造成注射时模板下弯。故动模板必须选用优质钢材,要有足够厚度,切不可用A3等低强度钢板,在必要时,应在动模板下方设置支撑柱或支撑块,以减小模板厚度,提高承载能力。

顶杆弯曲,断裂或者漏料:

注塑模具出故障,如何排除?,第5张


自制的顶杆质量较好,就是加工成本太高,现在通常选用标准件,质量一般。顶杆与孔的间隙如果太大,则出现漏料,但如果间隙太小,在注射时由于模温升高,顶杆膨胀而卡死。

更危险的是,有时顶杆被顶出一般距离就顶不动而折断,结果在下一次合模时这段露出的顶杆不能复位而撞坏凹模。为了解决这个问题,顶杆重新修磨,在顶杆前端保留10~15毫米的配合段,中间部分磨小0.2毫米。所有顶杆在装配后,都必须严格检查起配合间隙,一般在0.05~0.08毫米内,要保证整个顶出机构能进退自如。

冷却不良或水道漏水:

注塑模具出故障,如何排除?,第6张


注塑模具的冷却效果直接影响制品的质量和生产效率,如冷却不良,制品收缩大,或收缩不均匀而出现翘面变形等缺陷。另一方面模整体或局部过热,使模具不能正常成型而停产,严重者使顶杆等活动件热胀卡死而损坏。冷却系统的设计,加工以产品形状而定,不要因为模具结构复杂或加工困难而省去这个系统,特别是大中型模具一定要充分考虑冷却问题。

定距拉紧机构失灵:

注塑模具出故障,如何排除?,第7张


摆钩,搭扣之类的定距拉紧机构一般用于定模抽芯或一些二次脱模的模具中,因这类机构在模具的两侧面成对设置,其动作要求必须同步,即合模同时搭扣,开模到一定位置同时脱钩。

一旦失去同步,势必造成被拉模具的模板歪斜而损坏,这些机构的零件要有较高的刚度和耐磨性,调整也很困难,机构寿命较短,尽量避免使用,可以改用其他机构。在抽心力比较小的情况下可采用弹簧推出定模的方法,在抽芯力比较大的情况下可采用动模后退时型芯滑动,先完成抽芯动作后再分模的结构,在大型模具上可采用液压油缸抽芯。

斜销滑块式抽芯机构损坏:

注塑模具出故障,如何排除?,第8张


这种机构较常出现的毛病大多是加工上不到位以及用料太小,主要有以下两个问题:斜销倾角A大,优点是可以在较短的开模行程内产生较的大抽芯距。但是采取过大的倾角A,当抽拔力F为一定值时,在抽芯过程中斜销受到的弯曲力P=F/COSA,也越大,易出现斜销变形和斜孔磨损。

同时,斜销对滑块产生向上的推力N=FTGA也越大,此力使滑块对导槽内导向面的正压力增大,从而增加了滑块滑动时的摩擦阻力。易造成滑动不顺,导槽磨损。根据经验,倾角A不应大于25°。

导槽长度太小:

注塑模具出故障,如何排除?,第9张

有些模具因受模板面积限制,导槽长度太小,滑块在抽芯动作完毕后露出导槽外面,这样在抽芯后阶段和合模复位初阶段都容易造成滑块倾斜,特别是在合模时,滑块复位不顺,使滑块损伤,甚至压弯破坏。根据经验,滑块完成抽芯动作后,留在滑槽内的长度不应小于导槽全长的2/3。

在设计、制造模具时,应根据塑件质量的要求,批量的大小,制造期限的要求等具体情况,既能满足制品要求,在模具结构上又最简便可靠,易于加工,使造价低,这才是最完美的模具。

智能未来,未来已来
东莞潇洒职业培训学校开设课程有:高升专、专升本学历提升、全日制中职学校学位、积分入户、数控编程培训、塑胶模具设计培训,压铸模具设计培训、冲压模具设计培训,精雕、ZBrush圆雕培训、Solidworks产品设计培训、pro/E产品设计培训、AutoformR7工艺分析培训,非标自动化设计、PLC编程、CNC电脑锣操机、文职培训、电商培训、平面设计等培训、电商培训,潇洒职业培训学校线下、线上等网络学习方式,随到随学,上班学习两不误,欢迎免费试学!
联系电话:13018639933(微信同号)QQ:1939314927
学校官网:www.dgxspx.com 智造人才网:www.58hr.net
学习地址:东莞市横沥镇新城工业区兴业路121号-潇洒职业培训学校

免责声明:
1;所有标注为智造资料网zl.fbzzw.cn的内容均为本站所有,版权均属本站所有,若您需要引用、转载,必须注明来源及原文链接即可,如涉及大面积转载,请来信告知,获取《授权协议》。
2;本网站图片,文字之类版权申明,因为网站可以由注册用户自行上传图片或文字,本网站无法鉴别所上传图片或文字的知识版权,如果侵犯,请及时通知我们,本网站将在第一时间及时删除,相关侵权责任均由相应上传用户自行承担。
[complaint:内容投诉]
智造资料网打造智能制造3D图纸下载,在线视频,软件下载,在线问答综合平台 » 注塑模具出故障,如何排除?