B104a型机械密封(图文教程)

    B104a型机械密封的主要尺寸              (mm)

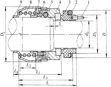
B104a型机械密封(图文教程),B104a型机械密封,尺寸,0.5,第1张

1—防转销   2、5—密封圈   3—静止环   4—旋转环   6—密封垫圈   7—推环   8—弹簧   9—传动垫

规格

d

d0

D

D1

D2

L

L1

L2

L3

L4

16

16

10

28

20

33

48.5

33.5

8

44.5

3.5

18

18

12

30

22

35

49.5

34.5

9

45.5

3.5

20

20

14

32

24

37

50.5

35.5

10

46.5

3.5

22

22

16

34

26

39

52.5

37.5

12

48.5

3.5

25

25

19

38

30

42

52.5

37.5

12

48.5

3.5

28

28

22

40

32

45

55.5

40.5

15

51.5

3.5

30

30

23

46

38

52

60

45

15

56

6

35

35

28

50

40

57

65

47

17

60

6

40

40

32

55

45

62

68

50

20

63

6

45

45

37

60

50

67

73

55

25

68

6

50

50

42

65

55

72

76

58

28

71

6

55

55

45

70

60

77

80

60

30

75

6

60

60

51

75

65

82

80

60

30

75

6

65

65

55

85

75

92

87

67

35

82

8

70

70

60

90

78

97

92

69

37

86

8

75

75

65

95

83

102

92

69

37

86

8

80

80

70

100

88

107

97

74

42

91

8

85

85

75

105

93

112

99

74

42

93

8

90

90

80

110

98

117

100

75

43

94

8

95

95

85

115

103

122

100

75

43

94

8

100

100

89

120

108

127

100

75

43

94

8

注:B104a型机械密封即原GY型机械密封。

免责声明:
1;所有标注为智造资料网zl.fbzzw.cn的内容均为本站所有,版权均属本站所有,若您需要引用、转载,必须注明来源及原文链接即可,如涉及大面积转载,请来信告知,获取《授权协议》。
2;本网站图片,文字之类版权申明,因为网站可以由注册用户自行上传图片或文字,本网站无法鉴别所上传图片或文字的知识版权,如果侵犯,请及时通知我们,本网站将在第一时间及时删除,相关侵权责任均由相应上传用户自行承担。
[complaint:内容投诉]
智造资料网打造智能制造3D图纸下载,在线视频,软件下载,在线问答综合平台 » B104a型机械密封(图文教程)